Sie sind hier: Startseite > Container > SC 25 Damen

Sanitärcontainer für Damen Typ SC 25 PDF Dokument in separatem Fenster anzeigen

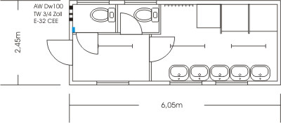
Sanitärcontainer für Damen Typ SC 25

Ausstattung:

  • 2 Toiletten
  • 2 Duschkabinen
  • 5 Waschbecken
  • 200 Liter Warmwasserboiler
  • Garderobenhaken
  • 1 E-Verteilung (Fi-Schutzs.+Si.-Autom.)
  • 1 E-Licht, E-Heizung
  • 1 E-Ventilator
  • 1 E-Anschluss 380V 32A CEE

Abbildungen

Sanitärcontainer Typ SC 25 Außen Sanitärcontainer Typ SC 25 Handwaschbecken Sanitärcontainer Typ SC 25 Duschen